
The challenges of a large luxury hotel
Elegance and comfort in customized solutions
Several problems to be solved for a large luxury hotel, and one single solution: the intercession of Luxury Style.

Customized solutions for various areas of a luxury building
Rendering a large hotel comfortable and elegant: a concept that is expressed in many different ways depending on the area of the structure concerned. The challenge of achieving the highest standards everywhere has been won: every surface is the ideal combination of comfort, elegance and safety.
The swimming pool
A functional and elegant floor
A luxury hotel needs an equally luxurious swimming pool: the client wanted a surface that was beautiful to look at, with a good anti-slip coefficient and a fast outflow of surface water.
Luxury Style has analysed the international production landscape, identifying the ideal solution – a large-layout floor, laid afloat on adjustable feet – in compliance with all the necessary regulations. The entire staff of designers and technical directors enthusiastically approved the proposed solution.

The corridors
The perfect consolidation of materials
The materials with various thicknesses and different expansions, made to measure as per the designer’s wishes, had to find a perfect fit in the floor’s corridors. he frames also had to be made ad hoc for each door of the room, in line with the attention to detail that characterizes the entire structure. There must be no compromises when it comes to a refined and sleek style.
After an in-depth analysis, it was decided to make the required cuts on site, with appropriate tools. The necessary sub-layouts were then obtained from large-layout tiles, creating various thicknesses with the aid of specific products. In this way, thanks to Luxury Style, the impossible was rendered possible.

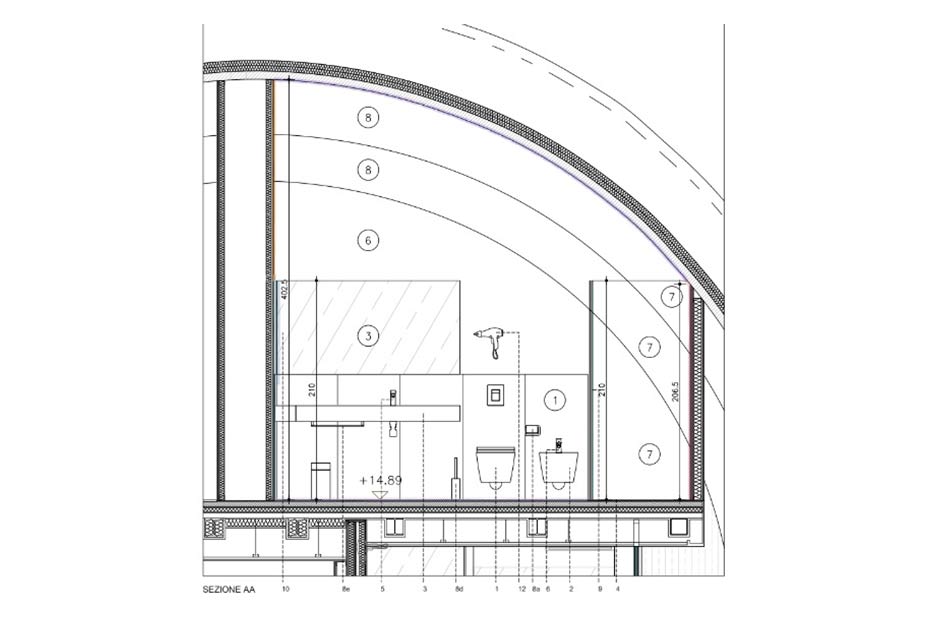
The Suites
Beyond the space limits
Ad hoc solutions for a building with an important panoramic effect rendered it possible in meeting high expectations, even for suites. Here, the problem concerned the creation of large-layout looks, for walls that were prospectively curved in the ceiling. How can one meet these technical requirements and still obtain a high quality finish?
Again, even in this case, an analysis, study and in-depth evaluation of possible solutions led to the overcoming of each and every difficulty. Through the use of special adhesives and auxiliary products, making curvilinear cuts on site with high-precision machines, elegance was not compromised: the refined and elegant suites were even further enhanced with high-end, sleek finishes.



The rooms
The right floor for an oasis of peace
The intercessions have allowed the hotel to achieve aesthetic and comfort characteristics that meet both the expectations of the most demanding customers and the standards of the chain. A final step was missing: a flooring for the rooms that was soundproof, extremely robust and cleanable.
A combination of factors made it possible to obtain the desired results: the solution installed is composed of a wood-effect vinyl product, which is extremely robust, and cork support, which has made it possible to remarkably reduce the decibels from footfall noise. In this way, every room has been transformed into an oasis of peace.


Looking for partners for unique solutions?